Studio de 15,3 m2


A partir de 34 000 €

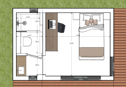
L’association des modules Y-TRA (3 x 3,6 m) et S-TRA (1,5 x 3 m) crée une surface de 15,3 m² extérieurs (≈12 m² nets intérieurs). Espace habitable composé d'une pièce principale et d'une surface complémentaire pour une salle d’eau ou un coin cuisine, il offre une solution confortable pour de multiples fonctionnalités :  studio indépendant, bureau de télétravail, local professionnel, ou un espace locatif clé en main.

Fabriqué dans nos ateliers et livré fini et prêt à vivre en une journée, ce studio s’installe chez vous en un jour et sans travaux.

Construits en ossature acier galvanisé (LSF) avec une isolation haute performance, des finitions intérieures et extérieures design, les modules My Extra Room combinent modernité et durabilité. Ils répondent aux normes, à la RE 2020 et sont couverts par une garantie décennale.


Equipements Inclus


Menuiseries

  • Baie Coulissante Aluminium 2150ht x 2000
  • Porte Fenêtre Aluminium 2150ht x 800 mm, avec serrure barillet et poignée.
  • Double vitrage retardateur d’effraction 44.2/12 Argon/4 Uw=1.40w/m²

Electricité

  • Installation conforme à la norme NF C15-100.
  • L'appareillage est de type ODACE Schneider ou similaire.
  • Fourniture et pose d'un détecteur de fumée conforme à la norme NF EN14604.
  • Système permettant de mesurer et de gérer la consommation d'énergie à distance.
  • Certificat Consuel.
  • Eclairage LED au plafond.

Finitions Extérieures

  • Enduits frotassés sur panneaux de polystyrène collé.
    Couleur au choix suivant la palette PRB
  • Bardage Bois
  • Panneaux Equitone

 

Finitions Intérieures

  • SOL
    • Sol vinyle, type Texline de Gerflor. 15 couleurs disponibles.
    • Parquet stratifié.
    • Parquet massif en Option
  • PLAFOND ET MURS
    • Panneaux de MDF pré à peindre
    • Panneaux bois peuplier ou chêne, plein ou rainurés
    • Panneaux Valchromat®

Isolation

Isolation avec panneaux de fibres végétales biosourcées. Ces isolants naturels offrent une solution efficace, saine, durable et écologique. 

 


Options


Salle d'eau / WC

  • Chauffe-eau de taille adaptée aux besoins.
  • Douche Italienne 1200 mm x 1000 mm avec
    Robinetterie Thermostatique.
  • Meuble Simple ou Double Vasque et miroir avec
    Robinetterie.
  • Wc suspendu encastré.

Climatisation /Chauffage

  • Climatisation AIR 2500W
  • Sèche serviette électrique.

Options High-Tech

  • Multimédia
  • Éclairage intelligent
  • Connectivité et réseaux
  • Commandes à distance

Fiche technique studio 15m2 Pdf
PDF – 1,3 MB 0 téléchargement