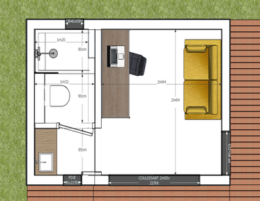
Studio de 13,5 m2


Combinaison modules X-Tra et S-Tra

Solution modulable idéale pour créer une studio de jardin habitable de 13,5 m² dans votre jardin. Espace fonctionnel et polyvalent, il peut accueillir un studio indépendant, un bureau de télétravail, une chambre d’ami, un logement étudiant ou un espace locatif clé en main.

Construits en ossature acier galvanisé (LSF) avec une isolation haute performance, une finition intérieure design en Valchromat et une toiture plate en EPDM, les modules My Extra Room combinent modernité et durabilité. Conforme à la norme RE 2020 et couverte par une garantie décennale, l’ExtraRoom est livrée clé en main et installée en une journée.


Equipements Inclus


Menuiseries

  • Baie Coulissante Aluminium 2150ht x 2000
  • Porte Fenêtre Aluminium 2150ht x 800 mm, avec serrure barillet et poignée.
  • Double vitrage retardateur d’effraction 44.2/12 Argon/4 Uw=1.40w/m²

Electricité

  • Installation conforme à la norme NF C15-100.
  • L'appareillage est de type ODACE Schneider ou similaire.
  • Fourniture et pose d'un détecteur de fumée conforme à la norme NF EN14604.
  • Système permettant de mesurer et de gérer la consommation d'énergie à distance.
  • Certificat Consuel.
  • Eclairage LED au plafond.

Climatisation / Chauffage

  • Climatisation Air/Air.

Finitions Extérieures

  • Enduits frotassés sur panneaux de polystyrène collé.
    Couleur au choix suivant la palette PRB
  • Bardage Bois
  • Panneaux Equitone

 

Finitions Intérieures

  • SOL
    • Sol vinyle, type Texline de Gerflor. 15 couleurs disponibles.
    • Parquet stratifié.
    • Parquet massif en Option
  • PLAFOND ET MURS
    • Panneaux de MDF pré à peindre
    • Panneaux bois peuplier ou chêne, plein ou rainurés
    • Panneaux Valchromat®

Isolation

Isolation avec panneaux de fibres végétales biosourcées. Ces isolants naturels offrent une solution efficace, saine, durable et écologique. 

 


Studio 13 M 2 Modules X Tra S Tra Pdf
PDF – 1,2 MB 0 téléchargement