
Une ExtraRoom pour accueillir sa maman chez soi
🌿 Muriel nous a contacté en juillet, elle venait de signer l'achat d'un maison à Bandol.
Elle souhaitait créer un espace indépendant et confortable pour que sa mère, Françoise, 84 ans, vienne vivre avec elle. 🌿
1. Premier rendez-vous
Nous nous rendons sur place pour rencontrer Muriel, écouter ses besoins et étudier la faisabilité du projet selon le PLU et la topographie du terrain. Elle souhaite créer une chambre avec salle de bain, sans coin cuisine, mais avec un grand lit double et des rangements fonctionnels. L’accessibilité et la sécurité sont prioritaires.
Photo de l'emplacement lors du premier rendez-vous
Simulation 3D de la future Extra Room

2. Études, Conception et Validation
Après vérification, nous confirmons que l’emplacement retenu — à une dizaine de mètres de la maison principale — est conforme au PLU. Il se situe à l'opposé de la rue, du coté jardin de la maison. Nous validons l'accès avec notre transporteur pour la future livraison du module d'habitation en camion grue.
Nous avons ensuite travaillé plusieurs variantes d’agencement pour optimiser l’espace, avec un soin particulier apporté aux matériaux et à l’ergonomie.
Les revêtements intérieurs seront en Valchromat, un matériau résistant, écologique et esthétique, qui sera également utilisé pour créer des meubles de rangement sur mesure.
3. Urbanisme et Fabrication
Nous avons ensuite déposé la demande d’autorisation auprès de la mairie de Bandol, dont l’instruction dure en moyenne un à deux mois.
Dès l’accord obtenu, la fabrication en atelier a pu être lancée.
L’installation sur le terrain est prévue entre trois et quatre mois plus tard, afin que Françoise puisse emménager dans son nouveau chez-elle au printemps prochain.🌸🌸

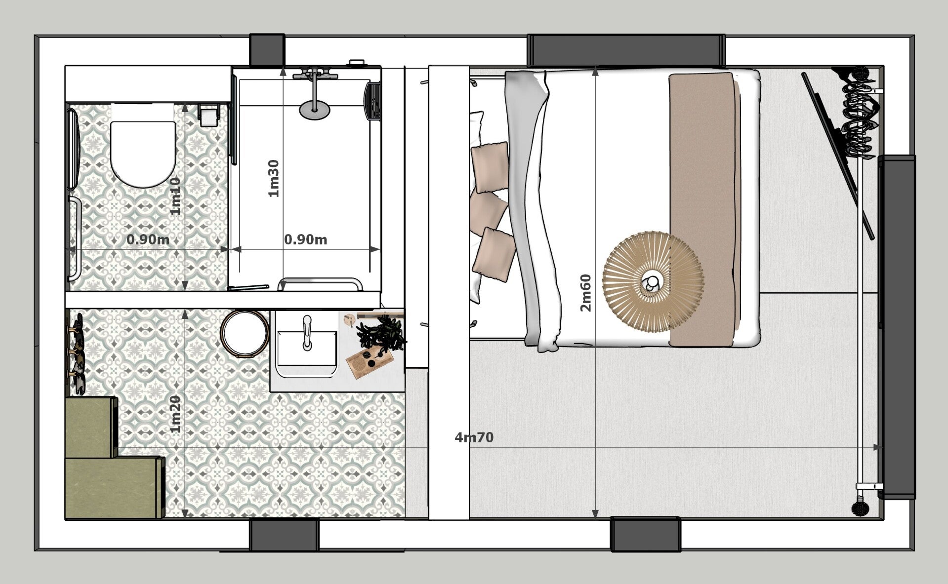
4. L'ExtraRoom de Françoise
Le résultat ?
🏡✨🤍Un espace chaleureux, sûr et ergonomique, créé sur mesure pour que Françoise s’y sente bien, tout en restant proche de sa famille. 🏡✨🤍
- Une chambre lumineuse avec un lit double 160 cm et des rangements intégrés,
-
Une salle d’eau spacieuse avec douche à l’italienne (130 × 90 cm), WC suspendu et meuble vasque,
-
Une circulation fluide et sans obstacles, adaptée aux personnes âgées.